空家プロジェクト

HOME | 空家プロジェクト

img20230524150009451637.jpg img20230524150036969931.jpg img20230524150056171072.jpg img20230524150122531878.jpg img20230524150136345512.jpg

リノベーションによって新しいカチを。

 

元の家を最大限に活かしながら、新しい生活シーンを想い描いてみませんか。
 
『あなただけの暮らし方』を一緒に見つけましょう。
 
 
 
~暮らし方の提案例~
new life style
 
 
 

What's 
空家プロジェクト

ROOM AKIYA project

 費用を抑えることができます 

土地付きの住まいを800万円から購入できます。
新築を建てるよりも大幅に費用を軽減できます。
マイホームがほしい!だけど家族旅行したい!車がほしい!貯蓄したい!という方にオススメです。

 

 『古き』を良きとしたデザイン

       古いものと新しいもののコラボによって、それぞれの特徴が引き立ち、新築にはない情緒ある空間を生み出します。
相続の物件の場合は、家族との思い出を残すことができます。
もちろん、時代に合った間取り、性能、設備に生まれ変わります。

 

 社会貢献につながります

日本の人口減少により空家が増え、大問題となっています。
空家を「きちんと手入れし、長く使う」ことは、資源エネルギー問題の解消にもつながります。

STRUCTURE

空家プロジェクトのしくみ

 

      
 

 

 
 

EXAMPLE

空家活用事例

無垢が活きたやすらぎの住まい
築約40年和風平屋住宅のリノベーション

 
 
 

焼杉に囲まれた屋根付きポーチを新設。
雨の日濡れにくく、プライベートスペースの目隠しに。
木の多色使いが外観をオシャレにみせています。 

玄関を入ると広い土間。ここは使い方の発想が広がる場所です。
木目のランダム貼りの壁が目に留まります。
 
日当たりのよい南側には、広いLDKをとりました。
入口には滑車風レールがついた木製造作ドアがあります。
大胆に斜めに配置されたアイランドキッチンでは、庭や部屋全体をみながら料理ができます。
構造的に外すことができなかった柱は、赤い木で囲いインテリアのアクセントとなっています。

無垢の木が所々に施された、職人技のアイデアが詰まった楽しい住まいです。

 

before

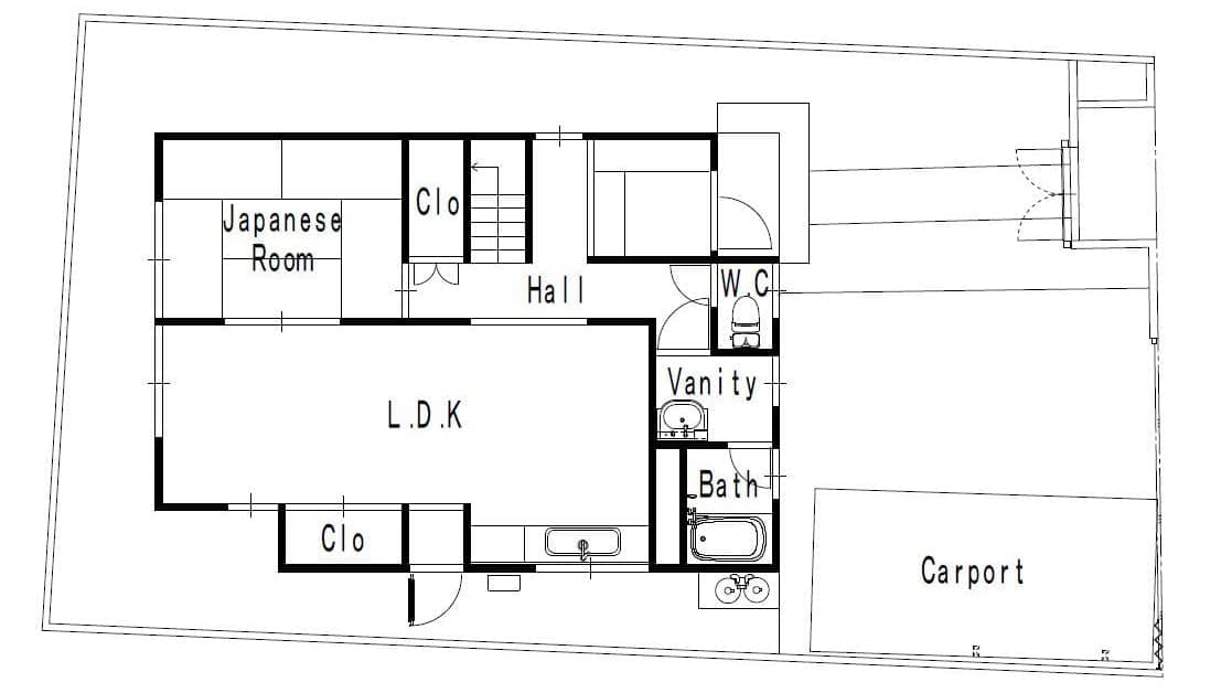
1F
 

 
 

after

1F
 

 
 

バイクライフを楽しむ
ガレージハウス
土間をバイクガレージにした『趣味空間』に

 

家の前の土間空間いっぱいに、広いカーポートを併設。
バイクガレージも設置。
バイク好きの旦那さんの趣味の部屋となりました。
エントランスに続くカーポートは、家族とのバーベキュー、読書、お茶などの遊び場に利用できるほか、雨の日、傘をささずに車の乗り降りができたり、物置に利用できるなど実用面にも優れています。
デッキ、浴室、洗面、トイレはガラスの壁でつながり、開放的なスペースに。
1階の和室はLDKと一体にし、広々とした家族の場となりました。

 

 
 

before

1F
 

 

 

after

1F
 

 

 
before

2F
 

 

 
after

2F
 

和風住宅がバリアフリー化
快適なオフィスに
安価な価格で実現したリノベ

 

築約45年、60坪ほどの木造平屋建和風住宅をオフィスにリノベーション。
バリアフリー化し、オフィスとして使いやすい空間に。
床は、傷に強く頑丈で土足でも使用可能な「フロアタイル」に張替え、また段差をなくしました。
車イスにも対応できる、広いトイレやスロープ付き出入口も完備。
空家約300万円、工事費約700万円、総額約1000万円で実現したオフィスです。

 

 
 

before

1F
 

 
 

after

1F